German Embassy Tokyo

- locationTokio
- year2006
- clientBRD, Bundesministerium für Verkehr, Bau- und Wohnungswesen
- BGF3.700 m2
- BRI14.900 m3

Embassy building
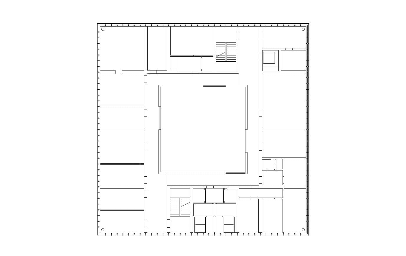
Proximity through distance: by resolving the apparent contradiction between this pair of opposites, the chancellery building of the German embassy in Tokyo seeks to fulfil its appointed role as a confident mediator and bearer of Federal German values and ideas, at the same time exercising all due restraint towards the host country, Japan.


A central hall rising through all storeys facilitates the ingress of daylight to the very heart of the building. The foyer and a room for various activities on the entrance level can be joined together to form a large events space.
The facade construction integrates the requisite external sunshading, which is operated by a control system that responds to different weather conditions. The external skin consists of large areas of glazing in aluminium frame elements.




